tsa.tookzy.com

Design and 3D Visualization Services

2D Design

Explore what's possible

2D Design and Layout

At The Sports Architect, we’re passionate about transforming your wildest dreams into breathtaking realities—one stunning 3D model at a time! Picture our models as your design GPS, expertly guiding event producers, marketing visionaries, business owners, and homeowners through the exhilarating journey of creation. With the freedom to explore countless design variations, your imagination can soar, unleashing a world of possibilities! Our meticulously crafted scale 3D models not only spark creativity but also help you identify any pesky design flaws early on, ensuring a smooth and cost-effective process.

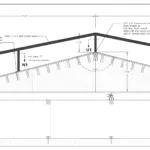
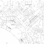
Scale 2D Layouts

When you begin crafting a high-level concept on a simple piece of paper, it’s easy to let your imagination flow without constraints. However, the challenge lies in the fact that these initial sketches often lack scale, making it difficult to ascertain whether your vision is truly feasible. At DugOut Design Studio, we transform your ideas into precise 2D plans that empower you to design with confidence, ensuring that your concepts are not only innovative but also practical as you navigate the estimating and approvals process.

When you begin crafting a high-level concept on a simple piece of paper, it’s easy to let your imagination flow without constraints. However, the challenge lies in the fact that these initial sketches often lack scale, making it difficult to ascertain whether your vision is truly feasible. At DugOut Design Studio, we transform your ideas into precise 2D plans that empower you to design with confidence, ensuring that your concepts are not only innovative but also practical as you navigate the estimating and approvals process.

When you begin crafting a high-level concept on a simple piece of paper, it’s easy to let your imagination flow without constraints. However, the challenge lies in the fact that these initial sketches often lack scale, making it difficult to ascertain whether your vision is truly feasible. At DugOut Design Studio, we transform your ideas into precise 2D plans that empower you to design with confidence, ensuring that your concepts are not only innovative but also practical as you navigate the estimating and approvals process.

When you begin crafting a high-level concept on a simple piece of paper, it’s easy to let your imagination flow without constraints. However, the challenge lies in the fact that these initial sketches often lack scale, making it difficult to ascertain whether your vision is truly feasible. At DugOut Design Studio, we transform your ideas into precise 2D plans that empower you to design with confidence, ensuring that your concepts are not only innovative but also practical as you navigate the estimating and approvals process.

When you begin crafting a high-level concept on a simple piece of paper, it’s easy to let your imagination flow without constraints. However, the challenge lies in the fact that these initial sketches often lack scale, making it difficult to ascertain whether your vision is truly feasible. At DugOut Design Studio, we transform your ideas into precise 2D plans that empower you to design with confidence, ensuring that your concepts are not only innovative but also practical as you navigate the estimating and approvals process.